
It can also be used for teeming and casting, so called teeming crane as well. As with the charging crane, safety and reliability come first with this crane since it is used to transport molten steel
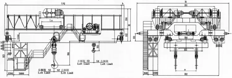
Foundry bridge crane is the main lifting and transportation equipment in the smelting workshop of the steel plant, which is used for lifting, pouring and mixing molten iron during the smelting process. Below 125t is generally YZ type double girder structure. Above 125t is generally YZS type four-beam structure.
The YZS type adopts the structure of main and auxiliary double trolleys, four girders and four rails. It is mainly composed of bridge frame, main trolley, auxiliary trolley, hook beam, trolley operation and electrical parts. The inner sub-beam track runs on the main trolley, and the pick-up device of the main trolley is a hook beam with a fixed distance, which is used to lift the ladle. To dump molten steel, steel slag and other auxiliary lifting operations.

Reasonable structure
Favorable performance
Soft starting and stopping
Safe and reliable traveling
Low noise, commodious cabin and good view
Convenient maintenance, excellent exchangeability for parts and components
Energy saving, reduce energy consumption
Using transducer for travelling or traversing crane to realize step speed or stepless speed change
Primer and finishing paint
Crane structure: steel box type



KORIGCRANES ( HENAN WEIHUA KORIG CRANES CO., LTD) located in crane hometown of China (cover more than 2/3 crane market in China), who is a trusted professional industry crane manufacturer and leading exporter. Specialized in design, manufacturing, installation and service of Overhead crane, Gantry crane, Port crane, Electric hoist etc, we have passed ISO 9001:2000, ISO 14001:2004, OHSAS 18001:1999, GB/T 19001-2000, GB/T 28001-2001, CE, SGS, GOST, TUV, BV and so on.
To meet the demands of the oversea market, we independent research and development European type overhead crane, gantry crane; electrolytic aluminum multi-purpose overhead crane, hydro-power station crane etc. European type crane with light dead weight, compact structure, lower energy consumption etc. Many main performance reach the industry advanced level.
KORIGCRANES Widely used in machinery, metallurgy, mining, electric power, railway, petroleum, chemical, logistics and other industries. Service for hundreds of large enterprises and national key projects such as China Datang Corporation, China Guodian Corporation, SPIC, Aluminum Corporation Of China(CHALCO), CNPC, Power China, China Coal, Three Gorges Group, China CRRC, Sinochem International, etc.
Our cranes has been exported cranes to more than 110 countries for example Pakistan, Bangladesh, India, Vietnam, Thailand, Indonesia, Philippines, Malaysia、USA, Germany, France, Australia, Kenya, Ethiopia, Nigeria, Kazakhstan, Uzbekistan, Saudi Arabia、UAE、Bahrain、Brazil, Chile, Argentina, Peru etc and received good feedback from them. Very happy to be friends with each other come from all of the world and hope to establish long-terms good cooperation.
KORIGCRANES has steel pre-treatment production lines, automatic welding production lines, machining centers, assembly workshops, electrical workshops, and anti-corrosion workshops. Can independently complete the whole process of crane production.
Q. What’s the information should I provide when inquiry?
More details or drawings, better.
A: Lift capacity B: span C: lift height D: power source; other specials you give us will be more appreciated.
Q. How many operating methods for my selection?
Standard operating methods:
A: remote control with push buttons
B: cabin (space capsule seat) control with joystick. Choose any type as you like.
Q. Can this type work in hazardous environment?
A:Sure! We can customize for you, acid proof or explosion proof, no problem for that.
Q. Can you provide the serious lifting tools?
A:Sure, we can provide any lift tools such as lift sling belt, lift clamp, grab, magnet or other specials as your requirement!
Q. How can we install the crane?
A:Our senior engineer can be your side to do the installation guide service and training. Moreover, our best sales can visit your country.